Middelburg, Brakstraat 30A&B
Woonruimte met statig kantoor óf, met enkele aanpassingen, twee woonruimtes van circa 167 m2 op de begane grond van een rijksmonument genaamd De Schulpe. Op een goede locatie gelegen, om de hoek ligt het historisch centrum van Middelburg al. Circa 3 à 4 jaar geleden is het gehele pand gerenoveerd met behoud van stijlelementen die je in een monument mag verwachten!
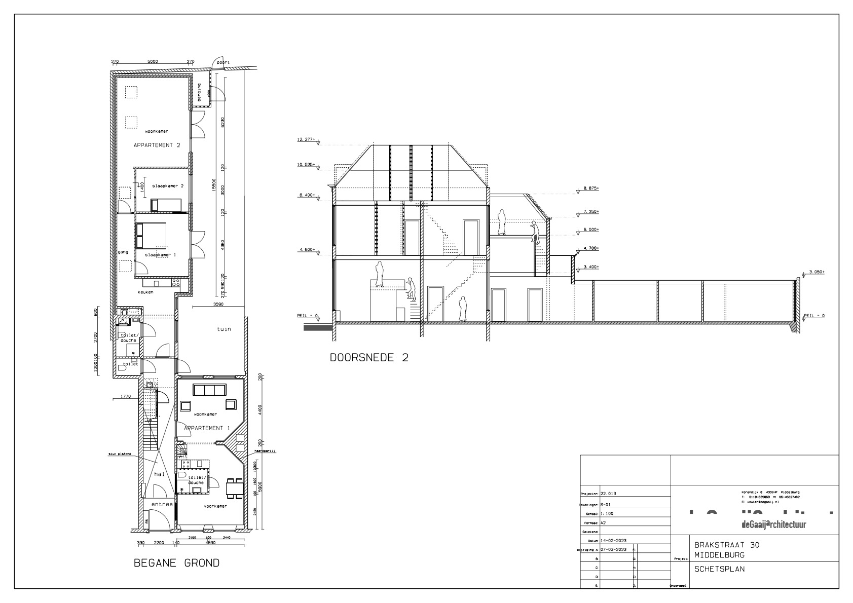
De indeling is als volgt: gezamenlijke entree op de begane grond, voorportaal met brievenbussen, door de hoge glazen deur kom je in de hal met trap en hoog plafond met schitterende ornamenten. In de hal is een toilet en een klein keukenblokje.
Aan de voorzijde een prachtige kamer met hoge plafonds, parketvloer en opnieuw fraaie ornamenten, met en-suite een sfeervolle achterkamer. In deze ruimte een keuken die eventueel eenvoudig te verwijderen is.
Vanuit de hal kom je aan de achterzijde in een uitgebreide uitbouw met keuken, badkamer, één grote ruimte en achterin twee geschakelde kleinere kamers. Vanuit de uitbouw zijn er openslaande deuren naar twee tuinterrassen.
Wil je buiten zitten, dan kan dat ook in de (gezamenlijke) tuin en er is een vrije achterom.
Op de verdiepingen zijn 5 appartementen / studio’s gelegen. Er is in de kelder (met prachtig gewelf) een algemene gezamenlijke berging, daar kun je prima je (race)fiets of surfplank stallen.
De totale oppervlakte van het geheel is circa 167m2 met te veel mogelijkheden om op te noemen. De bestemming van het object is gemengd.
De ruimte is uitstekend geschikt om wonen te combineren met werken (kantoor, praktijk- of atelierruimte) zonder enige aanpassing. Of er kan gedacht worden aan wonen met een tweede (zorg)woning, een architect heeft hiervoor reeds tekeningen gemaakt.
De afgelopen jaren is de ruimte gebruikt door vijf therapeuten, met elk hun eigen praktijkruimte. Dit kan natuurlijk ook zo voortgezet worden. De uitbouw wordt momenteel – tot het moment van verkoop – gebruikt door twee therapeuten met een huuropbrengst van Euro 1200,- per maand inclusief energiekosten.
Het geheel is goed onderhouden. Er is centrale verwarming, dubbele beglazing en een waterontharder. De ruimtes aan de voorzijde en de achterzijde hebben elk hun eigen cv-ketel en tussenmeters voor gas en elektriciteit.
Er is een actieve Vereniging van Eigenaars, de maandelijkse bijdrage bedraagt Euro 224,-.
Dit is wonen (én werken) met sfeer! Met alle voorzieningen, winkels, scholen, bolwerk, openbaar vervoer en de binnenstad op loopafstand. Ook de uitvalswegen zijn zeer goed bereikbaar vanaf deze locatie.
Bij serieuze interesse, maak een afspraak en kom zelf ervaren wat de mogelijkheden en kansen zijn!





















































